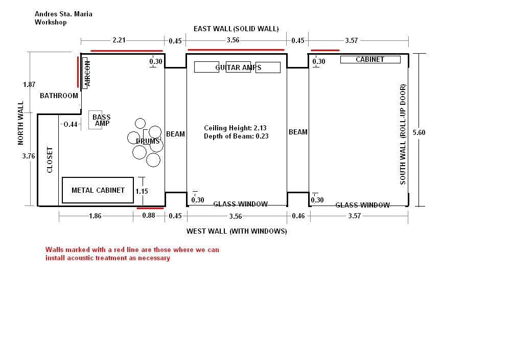
I was able to move my tool and parts cabinets (and the car) from my car workshop at home, so am able now to arrange the place for jamming with my friends and practice for the occasional show. The workshop is a rectangular 18' by 36'. There is a row of windows on one long side and a garage door on a short side.
Where should I locate the amplifiers and the drums?
I presently have the lead, rhythm, and keyboard amplifiers in the the middle of one long wall, firing toward the windows. The drum set is at one end of the rectangle, along with the bass amp. The problem is that the drummer can't hear the melody (I wish he would play at a lower volume, but that seems a hard thing for most drummers!).
We play Shadows pieces mostly, but do play Ventures too, which requires a switch to Fender amps. I have amps on shelves so we can switch amps easily and also so that I don't have to set up or move amps into place when friends come to play. The layout seems to work for the guitarists and keyboardist, but the drummer has a problem hearing what we're playing!
Any advice would be appreciated.
Thank you and best regards,
Andy



